В составе проекта:
- Коровник
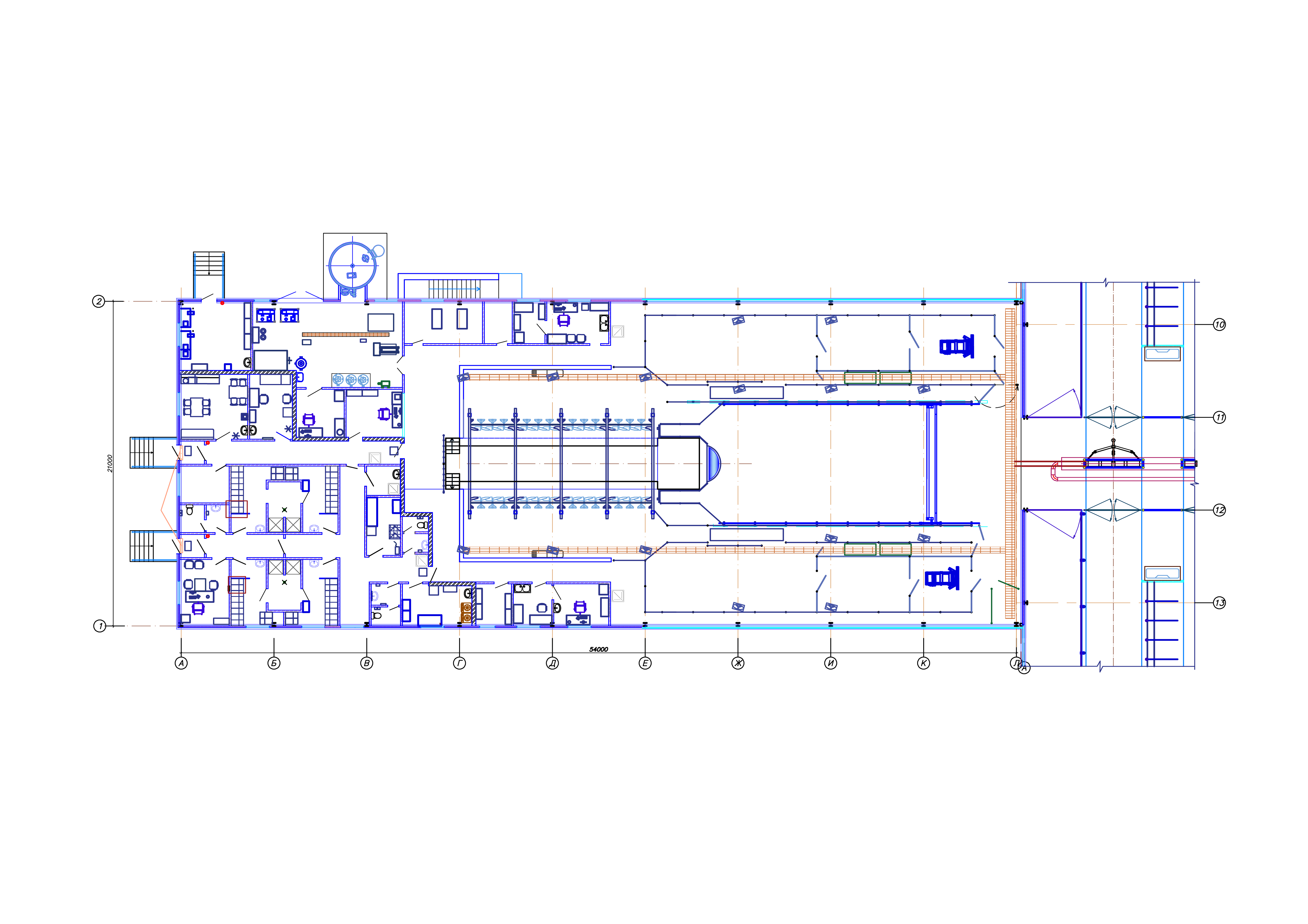
- Доильно-молочный блок с АБК
- Проходная
- Насосная станция 2-го подъема
- Навозоприемник
- Резервуары
- Пожарный резервуар №1, V= 300 куб.м
- Пожарный резервуар №2, V= 300 куб.м
- Резервуар для воды, V= 150 куб.м
- Дезбарьер
- Трансформаторная подстанция
- Дизельгенераторная №1
- Дизельгенераторная №2
- Дизельгенераторная №3
- Площадка хранения отсепарированного навоза
Обратите внимание: каждый проект необходимо адаптировать под конкретные условия. Это касается как снегового и ветрового районов, так и особенностей местности.
Есть возможность покупки части проекта, которая вас интересует.
Хотите узнать больше? Оставьте заявку или напишите на почту: vmx@sovmolko.ru
Специалисты ГК СОВМОЛКО готовы помочь вам в кратчайшие сроки.
Молочно-товарный комплекс на 656 коров
В наличии
Год проектирования - 2019
720 000
Заказать товар
Задать вопрос
Заказать товар
Оставьте заявку на сайте, и мы свяжемся с вами в ближайшее время.
